ZY-泄壓閥
丁寶勤 13906276368(技術)
電話:0513-88400999 傳真:0513-88400998 郵箱:jszk@vip.163.com
一、用途:
泄壓閥主要用于管路終端,控制管路壓力,控制壓力的大小可通過蓋頂部的配重來調節,適用于水泥、電力等工業部門。
二、工作原理:
當系統壓力超過固定壓力時將泄壓閥頂蓋沖開泄壓。
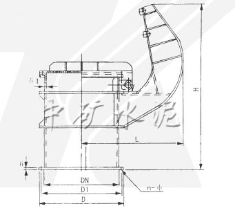
三、外形安裝尺寸:(見圖、表)

四、外形安裝尺寸表
|
DN |
D |
D1 |
H |
L |
δ |
δ1 |
NΦ |
|
500 |
958 |
865 |
1750 |
1105 |
12 |
1 |
24-Φ24 |
|
1300 |
1415 |
1370 |
2850 |
1550 |
20 |
8 |
30-Φ24 |
上一頁:防爆閥FBF-I FBF-II
下一頁:空氣炮











